production centers

Andrews Hubs - Melbourne

READ MORE

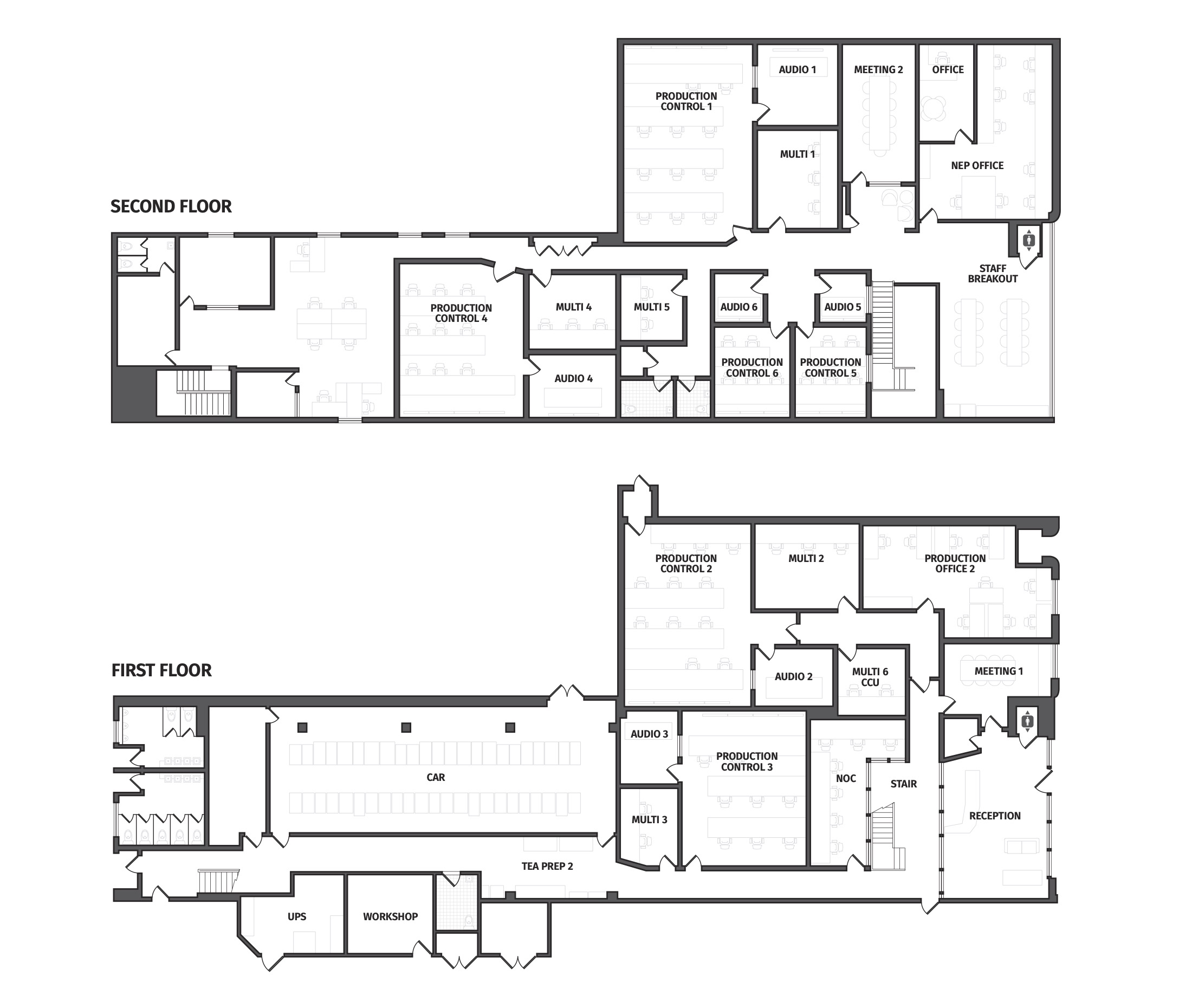
NEP’s IP-enabled Andrews Hubs in Sydney and Melbourne are the world’s largest networked centralised remote production centres. Connecting 50 venues via a high bandwidth network, the Hubs enable multiple concurrent outside broadcasts and Studio productions.

We offer a host of flexible production spaces, including:

  • Six control rooms
  • Six audio control rooms
  • Six flex spaces
  • Two Conference room
  • Reception area
  • Lounge area
  • NOC
  • Datacentre
  • Three Studios
  • Greenrooms

California Consumer Privacy Act (CCPA) Opt-Out IconYour Privacy Choices